所沢市 北秋津9期 全1棟 埼玉県所沢市大字北秋津 |5,299万円の新築一戸建て
| 価格 | 5,299万円
月々の返済額※下記のシミュレーション結果です。
|
||||
|---|---|---|---|---|---|
| 所在地 | 埼玉県所沢市大字北秋津
この地域周辺の物件を見る |
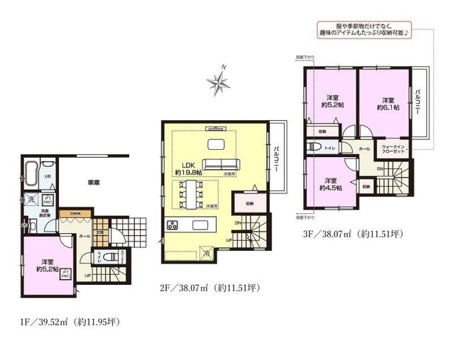
土地面積 | 64.76m² (19.58坪) | 建物面積 | 115.66u |
| 築年月 | 2026年6月築 | 間取り | 4LDK (-) | ||
| 交通 |
西武新宿線 所沢 徒歩14分
西武狭山線 西所沢 徒歩28分 |
||||
詳細を知りたい方、お問合せはお気軽に!
お問合わせNO:RHS-B01836-026306
| 特徴 |
|
|---|---|
| セールスコメント | 【敷地のポイント】 ●土地面積 約20坪 ●北東側私道4mに接道 ●整形地 【建物のポイント】 ●3階建て 4LDK ●2階 約20帖リビング ●ビルトインガレージ ・西武池袋線・西武新宿線「所沢」駅利用可能 ・2階に約20帖の広々LDKを配置 ・家族が集まるゆとりあるリビング空間 ・2階リビングでプライバシー性にも配慮 ・各居室をしっかり確保した使いやすい間取り ・敷地を有効活用した機能的な住まい |
| 採光面 | 南 | 構造/階数 | 木造/地上3階建 |
|---|---|---|---|
| 建ぺい率 | 60(%) | 容積率 | 200(%) |
| 駐車場 | 有 | 現況/引渡し | -/相談 |
| 土地権利 | 所有権 | 私道負担面積 | あり 11.59m² |
| 接道状況 | 接道: 北東 私道 道路幅: 4m | 用途地域 |
第一種住居地域
|
| セットバック | - | 法令上の制限 | - |
| 地目 | 宅地 | 地勢 | |
| 建築確認番号 | 第KBI-YKH-10-3778号 | 都市計画 | 市街化区域 |
| 取引態様 | 仲介 | ||
| 情報更新日 | 2026年05月09日 | 次回更新日 | 2026年05月23日 |
| 小学校区 | 所沢市立北秋津小学校 (埼玉県所沢市) この学区の他の物件を見る |
中学校区 | 南陵中学校 (埼玉県所沢市) この学区の他の物件を見る |
|---|
詳細を知りたい方、お問合せはお気軽に!
お問合わせNO:RHS-B01836-026306
| 価格 | 万円 | ||
|---|---|---|---|
| 年利率 | % |
||
| ボーナス払い | 返済年数 | ||
| 頭金 | 直接入力する | 万円 | |

毎月のご返済額 |
ボーナス(×年2回) |
物件価格5,299万円 |
詳細を知りたい方、お問合せはお気軽に!
お問合わせNO:RHS-B01836-026306
Shop
西武池袋線・西武新宿線「所沢」駅利用可能。2階に約20帖の広々LDK