入間市大字南峯 埼玉県入間市大字南峯 |980万円の中古一戸建て
| 価格 | 980万円
月々の返済額※下記のシミュレーション結果です。
|
||||
|---|---|---|---|---|---|
| 所在地 | 埼玉県入間市大字南峯
この地域周辺の物件を見る |
土地面積 | 100.01m² (30.25坪) | 建物面積 | 80.14u |
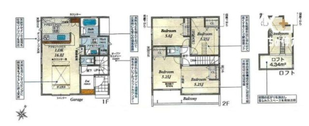
| 築年月 | 1993年10月築 | 間取り | 4DK (和室6/洋室6/DK8) | ||
| 交通 |
JR八高線 金子 徒歩12分
西武池袋線 元加治 徒歩55分 |
||||
詳細を知りたい方、お問合せはお気軽に!
お問合わせNO:RHS-B01836-023987
| 特徴 |
|
|---|---|
| セールスコメント | お客様の新しい《お住まい》のお手伝いをさせていただきます。 ファイナンシャルプランナーや、 宅地建物取引士などの資格を持ったスタッフによる、 無料相談を実施しております。 ・‥…おすすめポイント…‥・ ■全居室6帖以上ゆとりある間取り ■出窓のあるお住まい 〜お部屋やダイニングに明るい陽射しが差し込みますね ■ダイニングに続く和室を開けますと広々空間 〜お子さまのお昼寝や遊び場にも重宝 ■2階6帖洋室にウォークインクローゼットあり 〜収納豊富なお住まい ■キッチンに床下収納もあり 〜保存食等の保管にも ・‥…ライフインフォメーション…‥・ ■小学校まで徒歩16分 ■中学校まで徒歩15分 ■スーパーまで徒歩5分 ■コンビニまで徒歩8分 〜生活しやすい住環境 |
| 採光面 | - | 構造/階数 | 木造/地上2階建 |
|---|---|---|---|
| 建ぺい率 | 50(%) | 容積率 | 100(%) |
| 駐車場 | 有 | 現況/引渡し | 空家/相談 |
| 土地権利 | 所有権 | 私道負担面積 | - |
| 接道状況 | 接道: 南西 公道 道路幅: 4m | 用途地域 |
指定なし
|
| セットバック | なし | 法令上の制限 | - |
| 地目 | 宅地 | 地勢 | |
| 建築確認番号 | 都市計画 | 市街化調整区域 | |
| 取引態様 | 仲介 | ||
| 情報更新日 | 2026年04月20日 | 次回更新日 | 2026年05月04日 |
| 小学校区 | 入間市立金子小学校 (埼玉県入間市) この学区の他の物件を見る |
中学校区 | 金子中学校 (埼玉県入間市) この学区の他の物件を見る |
|---|
詳細を知りたい方、お問合せはお気軽に!
お問合わせNO:RHS-B01836-023987
| 価格 | 万円 | ||
|---|---|---|---|
| 年利率 | % |
||
| ボーナス払い | 返済年数 | ||
| 頭金 | 直接入力する | 万円 | |

毎月のご返済額 |
ボーナス(×年2回) |
物件価格980万円 |
詳細を知りたい方、お問合せはお気軽に!
お問合わせNO:RHS-B01836-023987
Shop
■JR八高線「金子駅」まで徒歩12分
■緑豊かな住環境
■全居室6帖以上ゆとりある間取り