ヒバリタワー 東京都西東京市住吉町3丁目|9,980万円の中古マンション|分譲住宅や新築物件
| 価格 | 9,980万円
月々の返済額※下記のシミュレーション結果です。
|
||||
|---|---|---|---|---|---|
| 所在地 | 東京都西東京市住吉町3丁目
この地域周辺の物件を見る |
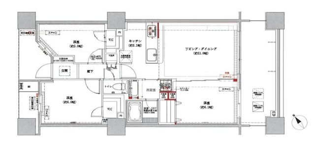
専有面積 | 68.58u | 築年月 | 2009年2月築 |
| 交通 |
西武新宿線 田無 バス25分 ひばりヶ丘駅 停歩1分
|
管理費等 | 22,800円 | 修繕積立金 | 17,800円 | 所在階/階数 | 8階/地上33階 地下1階建 | バルコニー面積 | 20.24m² |
| 間取り | 3LDK (-) | ||||
詳細を知りたい方、お問合せはお気軽に!
お問合わせNO:RHS-B01836-026701
| 特徴 |
|
|---|---|
| セールスコメント | 【オンラインでのご相談、見学が可能 】 来店しなくてもテレビ電話でオンライン商談、物件見学ができるオンライン対応を実施! ◇資料請求などお気軽にお問い合わせください♪ ◇株式会社アークレスト ★・。.。・☆・。.★・。.。・☆・。.★・。.。 ■家族が集う約14帖LDK ■続き間洋室も開放してゆとりある団欒空間に! ■床暖房完備! ■リビングを見渡せるカウンターキッチン ■食器洗い乾燥機付きシステムキッチン! 〜ディスポーザブル付き ■家事動線がスムーズな水回り集中タイプ 〜キッチンから洗面スペースがスムーズ ■ウォークインクローゼット2居室 ■廊下や各居室に収納スペースがあり収納豊富 ■2居室から出入り可能ワイドバルコニー 〜奥行約2mのゆとり空間で景色を眺めてくつろげます =充実の周辺施設= ・西友 徒歩1分 ・西東京市役所出張所 徒歩1分 ・PARCO 徒歩5分 ・セブンイレブン 徒歩4分 ・りそな銀行 徒歩4分 など |
| 採光面 | 東南 | 取引態様 | 仲介 |
|---|---|---|---|
| 現況 | 空家 | 引渡し | 相談 |
| 総戸数 | 329戸 | 構造 | RC造 |
| テラス面積 | - | 専用庭面積 | - |
| 駐車場 | 有:20,000円/月 | 駐輪場 | - |
| 建物権利 | - | 土地権利 | 所有権 |
| 用途地域 | 近隣商業地域 - - | 管理態様 | 管理形態:委託(通勤) 管理組合:- 管理会社:(株)大京アステージ |
| 情報更新日 | 2026年04月29日 | 次回更新日 | 2026年05月13日 |
| 小学校区 | 西東京市立住吉小学校 (東京都西東京市) この学区の他の物件を見る |
中学校区 | 田無第二中学校 (東京都西東京市) この学区の他の物件を見る |
|---|
詳細を知りたい方、お問合せはお気軽に!
お問合わせNO:RHS-B01836-026701
| 価格 | 万円 | ||
|---|---|---|---|
| 年利率 | % |
||
| ボーナス払い | 返済年数 | ||
| 頭金 | 直接入力する | 万円 | |

毎月のご返済額 |
ボーナス(×年2回) |
物件価格9,980万円 |
詳細を知りたい方、お問合せはお気軽に!
お問合わせNO:RHS-B01836-026701
Shop
■急行停車駅「ひばりヶ丘」駅より徒歩1分!
■ひばりヶ丘のシンボルタワー8階
■ラグジュアリー感ある棟内
■眺望良好!スカイツリーも楽しめます!