西東京市向台町4丁目 全2区画 1号区 東京都西東京市向台町4丁目|4,600万円の土地
| 価格 | 4,600万円
月々の返済額※下記のシミュレーション結果です。
|
||||
|---|---|---|---|---|---|
| 所在地 | 東京都西東京市向台町4丁目
この地域周辺の物件を見る |
土地面積 | 97.78m² (29.57坪) | 坪単価 | 155.52万円 /坪 |
| 交通 |
西武新宿線 田無 徒歩17分
|
建ぺい率 | 40 % | 容積率 | 80 % |
詳細を知りたい方、お問合せはお気軽に!
お問合わせNO:RHS-B01836-026663
| 特徴 |
|
|---|---|
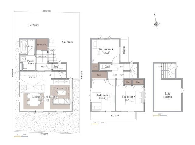
| セールスコメント | 【オンラインでのご相談、見学が可能 】 来店しなくてもテレビ電話でオンライン商談、物件見学ができるオンライン対応を実施! ◇資料請求などお気軽にお問い合わせください♪ ◇株式会社アークレスト ★・。.。・☆・。.★・。.。・☆・。.★・。.。 ■建築条件付き! ■ご希望のマイホームを実現! ■参考プラン ・建物面積:77.76平米 ・建物参考価格:1,780万円 ■LDKを暮らしの核にする、家事も子育ても一直線の住まいプラン ■収納豊富な住まいは空間利用を上手にします! ・8帖ロフト ・全居室収納付き ・シューズインクローゼット *プラス200万円にて条件外しの対応も可能です! お好きなハウスメーカーで建築もOK お気軽にご相談ください! |
| 建築条件 | あり | 土地権利 | 所有権 |
|---|---|---|---|
| 現況/引渡し | 更地/相談 | 接道状況 | 接道: 北 私道 道路幅: 4m |
| 私道負担面積 | あり 36.37m² | セットバック | なし |
| 地勢 | 0 | 地目 | 宅地 |
| 用途地域 | 第一種低層住居専用地域 | 都市計画 | 市街化区域 |
| 法令上の制限 | - | 国土法届出 | 不要 |
| 取引態様 | 仲介 | ||
| 情報更新日 | 2026年04月25日 | 次回更新日 | 2026年05月09日 |
| 小学校区 | 西東京市立向台小学校 (東京都西東京市) この学区の他の物件を見る |
中学校区 | 田無第四中学校 (東京都西東京市) この学区の他の物件を見る |
|---|
詳細を知りたい方、お問合せはお気軽に!
お問合わせNO:RHS-B01836-026663
| 価格 | 万円 | ||
|---|---|---|---|
| 年利率 | % |
||
| ボーナス払い | 返済年数 | ||
| 頭金 | 直接入力する | 万円 | |

毎月のご返済額 |
ボーナス(×年2回) |
物件価格4,600万円 |
![]() |
![]() |
西東京市向台町4丁目
4600万円 |
詳細を知りたい方、お問合せはお気軽に!
お問合わせNO:RHS-B01836-026663
Shop
■急行停車駅「田無」駅徒歩10分!
〜バス便にて複数路線へ快適アクセスOK
■小学校徒歩7分!中学校徒歩10分
■商業施設充実!日々の暮らしを快適サポート