東村山市 富士見町4丁目 東京都東村山市富士見町4丁目|4,080万円の新築一戸建て
| 価格 | 4,080万円
値下がり
月々の返済額※下記のシミュレーション結果です。
|
||||
|---|---|---|---|---|---|
| 所在地 | 東京都東村山市富士見町4丁目
この地域周辺の物件を見る |
土地面積 | 139.58m² (42.22坪) | 建物面積 | 96.05u |
| 築年月 | 2026年3月築 | 間取り | 4LDK (-) | ||
| 交通 |
西武多摩湖線 武蔵大和 徒歩10分
|
||||
詳細を知りたい方、お問合せはお気軽に!
お問合わせNO:RHS-B01836-026457
| 特徴 |
|
|---|---|
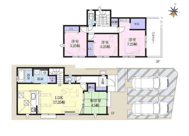
| セールスコメント | お客様の新しい《お住まい》のお手伝いをさせていただきます。 ファイナンシャルプランナーや、宅地建物取引士などの資格を持ったスタッフによる、無料相談を実施しております。 【建物のポイント】 ●カースペース並列2台 ●17.25帖リビング ●ビルトイン浄水器付き ●リビング横4.5帖和室 ●リネン庫付きパウダールーム ●WIC、カウンター付き主寝室7.25帖 ●ワイドバルコニー ●ベタ基礎 ●低ホルムアルデヒド 【敷地のポイント】 ●第一種低層住居専用地域内の住宅街 ●徒歩圏内に買物施設充実 【 アクセス 】 ■西武多摩湖線「武蔵大和」駅徒歩10分 【周辺のポイント】 ●ファミリーマート 東村山富士見町店まで徒歩4分 ●オザム 美住町店まで徒歩20分 ●ココカラファイン 東大和清水店まで徒歩7分 ●東村山むさしの幼稚園まで徒歩7分 ●東村山市立富士見小学校まで徒歩17分 ●東村山市立東村山第七中学校まで徒歩18分 |
| 採光面 | 南 | 構造/階数 | 木造/地上2階建 |
|---|---|---|---|
| 建ぺい率 | 50(%) | 容積率 | 100(%) |
| 駐車場 | 有 | 現況/引渡し | 空家/相談 |
| 土地権利 | 所有権 | 私道負担面積 | - |
| 接道状況 | 接道: 東 公道 道路幅: 4m 接道: 北 私道 道路幅: 2.6m |
用途地域 |
第一種低層住居専用地域
|
| セットバック | なし | 法令上の制限 | 準防火地域 |
| 地目 | 宅地 | 地勢 | 平坦 |
| 建築確認番号 | 都市計画 | 市街化区域 | |
| 取引態様 | 仲介 | ||
| 情報更新日 | 2026年05月22日 | 次回更新日 | 2026年06月05日 |
| 小学校区 | 東村山市立富士見小学校 (東京都東村山市) この学区の他の物件を見る |
中学校区 | 東村山第七中学校 (東京都東村山市) この学区の他の物件を見る |
|---|
詳細を知りたい方、お問合せはお気軽に!
お問合わせNO:RHS-B01836-026457
| 価格 | 万円 | ||
|---|---|---|---|
| 年利率 | % |
||
| ボーナス払い | 返済年数 | ||
| 頭金 | 直接入力する | 万円 | |

毎月のご返済額 |
ボーナス(×年2回) |
物件価格4,080万円 |
詳細を知りたい方、お問合せはお気軽に!
お問合わせNO:RHS-B01836-026457
Shop
長期優良住宅認定物件!17帖超えLDK、リネン庫やWIC、収納豊富住宅です!