富士見市水子第5期 全1棟 埼玉県富士見市大字水子 |4,980万円の新築一戸建て
| 価格 | 4,980万円
値下がり
月々の返済額※下記のシミュレーション結果です。
|
||||
|---|---|---|---|---|---|
| 所在地 | 埼玉県富士見市大字水子
この地域周辺の物件を見る |
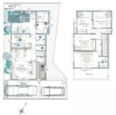
土地面積 | 100m² (30.25坪) | 建物面積 | 79.9u |
| 築年月 | 2026年2月築 | 間取り | 3LDK (-) | ||
| 交通 |
東武東上線 みずほ台 徒歩14分
東武東上線 鶴瀬 徒歩25分 |
||||
詳細を知りたい方、お問合せはお気軽に!
お問合わせNO:RHS-B01836-025208
| 特徴 |
|
|---|---|
| セールスコメント | お客様のお住まい探しのお手伝いをさせていただきます! 《ファイナンシャルプランナー》や 《宅地建物取引士》などの資格を持ったスタッフによる 無料相談を実施! ぜひアークレストにおまかせください ・‥…おすすめポイント…‥・ ■リビング17.5帖あり 〜ご家族みんなでくつろげますね ■家族と会話のはずむ対面キッチン 〜ビルトイン食洗機あり 〜浄水器付き 〜大型造作カップボード付き ■2か所にバルコニー 〜明るい光が差しこみますね 〜2階の全居室がバルコニーに面しています ■全居室に収納あり ■玄関にシューズクロークあり 〜玄関もすっきり片付きますね ・‥…周辺環境…‥・ ■水谷小学校 徒歩8分 ■ビッグ・エー東みずほ台1丁目店 徒歩9分 ■ローソン富士見水谷店 徒歩6分 ■ららぽーと富士見 徒歩10分 ★・。.。・☆・。.★・。.。・☆・。.★・ 週末に、ご家族・ご友人お誘いあわせの上、 現地をご覧になってみませんか? 周辺環境と合わせてご案内致します! |
| 採光面 | - | 構造/階数 | 木造/地上2階建 |
|---|---|---|---|
| 建ぺい率 | 50(%) | 容積率 | 80(%) |
| 駐車場 | 有 | 現況/引渡し | 空家/相談 |
| 土地権利 | 所有権 | 私道負担面積 | - |
| 接道状況 | 接道: 南 公道 道路幅: 4.2m 接道: 西 公道 道路幅: 6.2m |
用途地域 |
第一種低層住居専用地域
|
| セットバック | なし | 法令上の制限 | 景観地区/景観地区 |
| 地目 | 宅地 | 地勢 | |
| 建築確認番号 | 都市計画 | 市街化区域 | |
| 取引態様 | 仲介 | ||
| 情報更新日 | 2026年04月19日 | 次回更新日 | 2026年05月03日 |
| 小学校区 | 富士見市立水谷小学校 (埼玉県富士見市) この学区の他の物件を見る |
中学校区 | () |
|---|
詳細を知りたい方、お問合せはお気軽に!
お問合わせNO:RHS-B01836-025208
| 価格 | 万円 | ||
|---|---|---|---|
| 年利率 | % |
||
| ボーナス払い | 返済年数 | ||
| 頭金 | 直接入力する | 万円 | |

毎月のご返済額 |
ボーナス(×年2回) |
物件価格4,980万円 |
詳細を知りたい方、お問合せはお気軽に!
お問合わせNO:RHS-B01836-025208
Shop
◇東武東上線『みずほ台駅』徒歩10分
◇ららぽーと富士見まで徒歩10分
〜ご家族とグルメやショッピングが楽しめます!
◇角地の為、陽当たり通風良好!