富士見市大字水子 埼玉県富士見市大字水子 |5,500万円の中古一戸建て
| 価格 | 5,500万円
値下がり
月々の返済額※下記のシミュレーション結果です。
|
||||
|---|---|---|---|---|---|
| 所在地 | 埼玉県富士見市大字水子
この地域周辺の物件を見る |
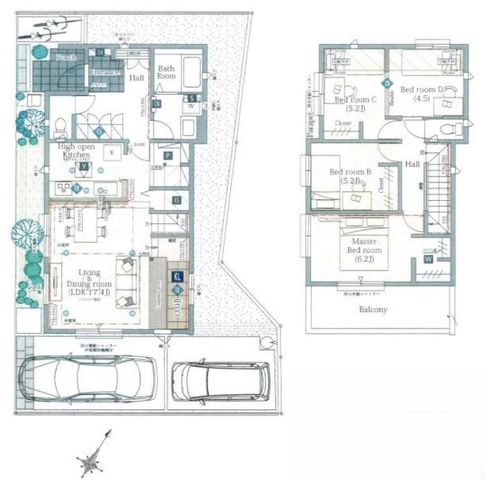
土地面積 | 125.01m² (37.81坪) | 建物面積 | 99.93u |
| 築年月 | 2025年9月築 | 間取り | 4LDK (-) | ||
| 交通 |
東武東上線 みずほ台 徒歩9分
東武東上線 柳瀬川 徒歩17分 |
||||
詳細を知りたい方、お問合せはお気軽に!
お問合わせNO:RHS-B01836-025141
| 特徴 |
|
|---|---|
| セールスコメント | お客様の新しい《お住まい》のお手伝いをさせていただきます。 ファイナンシャルプランナーや、 宅地建物取引士などの資格を持ったスタッフによる、 無料相談を実施しております。 ・‥…━…‥・‥…━…‥・‥…━…‥・‥…━…‥・‥… ◆東武東上線・みずほ台駅徒歩9分! ◆令和7年9月完成の築浅住宅 ・‥…━…‥・‥…━…‥・‥…━…‥・‥…━…‥・‥… ・陽当たり良好で明るく心地よい住空間 ・車庫2台分を確保した、ゆとりある敷地設計 ・安全性を配慮した防火電動シャッターを採用(2階は手動) ・家族との会話が弾む対面キッチン ・自然と家族が顔を合わせるリビング階段の間取り ・快適な暮らしを支える、充実の住宅設備 ・省エネ性、耐震性に優れ、長く安心して住み続けられる高品質仕様 ・‥…━…‥・‥…━…‥・‥…━…‥・‥…━…‥・‥… |
| 採光面 | 南西 | 構造/階数 | 木造/地上2階建 |
|---|---|---|---|
| 建ぺい率 | 50(%) | 容積率 | 80(%) |
| 駐車場 | 有 | 現況/引渡し | 居住中/相談 |
| 土地権利 | 所有権 | 私道負担面積 | - |
| 接道状況 | 接道: 南西 公道 道路幅: 4.2m | 用途地域 |
第一種低層住居専用地域
|
| セットバック | - | 法令上の制限 | - |
| 地目 | 宅地 | 地勢 | |
| 建築確認番号 | 都市計画 | 市街化区域 | |
| 取引態様 | 仲介 | ||
| 情報更新日 | 2026年04月22日 | 次回更新日 | 2026年05月06日 |
| 小学校区 | 富士見市立水谷小学校 (埼玉県富士見市) この学区の他の物件を見る |
中学校区 | () |
|---|
詳細を知りたい方、お問合せはお気軽に!
お問合わせNO:RHS-B01836-025141
| 価格 | 万円 | ||
|---|---|---|---|
| 年利率 | % |
||
| ボーナス払い | 返済年数 | ||
| 頭金 | 直接入力する | 万円 | |

毎月のご返済額 |
ボーナス(×年2回) |
物件価格5,500万円 |
詳細を知りたい方、お問合せはお気軽に!
お問合わせNO:RHS-B01836-025141
Shop
◆東武東上線・みずほ台駅徒歩9分
〜通勤・通学に便利なアクセス良好の立地〜
◆令和7年9月完成の築浅住宅
〜長期優良住宅で安心性能を備えた住まい〜