所沢市荒幡第22 埼玉県所沢市大字荒幡 |3,480万円の新築一戸建て
| 価格 | 3,480万円
月々の返済額※下記のシミュレーション結果です。
|
||||
|---|---|---|---|---|---|
| 所在地 | 埼玉県所沢市大字荒幡
この地域周辺の物件を見る |
土地面積 | 114.17m² (34.53坪) | 建物面積 | 87.48u |
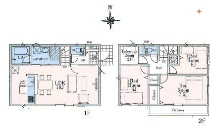
| 築年月 | 2026年1月築 | 間取り | 3LDK (-) | ||
| 交通 |
西武狭山線 西所沢 徒歩16分
西武狭山線 下山口 徒歩19分 |
||||
詳細を知りたい方、お問合せはお気軽に!
お問合わせNO:RHS-B01836-024642
| 特徴 |
|
|---|---|
| セールスコメント | お客様の新しい《お住まい》のお手伝いをさせていただきます。 ファイナンシャルプランナーや、 宅地建物取引士などの資格を持ったスタッフによる、 無料相談を実施しております。 ・‥…おすすめポイント…‥・ ■西武池袋線「西所沢」駅徒歩16分 ■充実の設備で子育て世帯にも安心の仕様 ■南側バルコニーで陽当り良好 *・。*・。*・。*・。*・。*・。*・。*・。*・。*・。 *・。*・。*・。*・。*・。*・。*・。*・。*・。*・。 ・‥…ライフインフォメーション…‥・ ■小学校まで徒歩10分 ■中学校まで徒歩21分 ■スーパーまで徒歩9分 ■コンビニまで徒歩6分 〜エミテラス所沢まで車で10分な〜 買物に便利な立地です! |
| 採光面 | - | 構造/階数 | 木造/地上2階建 |
|---|---|---|---|
| 建ぺい率 | 50(%) | 容積率 | 80(%) |
| 駐車場 | - | 現況/引渡し | -/相談 |
| 土地権利 | 所有権 | 私道負担面積 | - |
| 接道状況 | 接道: 東 公道 道路幅: 4m | 用途地域 |
第一種低層住居専用地域
|
| セットバック | なし | 法令上の制限 | 高さ最高限度有 |
| 地目 | 宅地 | 地勢 | |
| 建築確認番号 | 第25UDI1W建06760号 | 都市計画 | 市街化区域 |
| 取引態様 | 仲介 | ||
| 情報更新日 | 2025年11月11日 | 次回更新日 | 2025年11月25日 |
| 小学校区 | 所沢市立荒幡小学校 (埼玉県所沢市) この学区の他の物件を見る |
中学校区 | 山口中学校 (埼玉県所沢市) この学区の他の物件を見る |
|---|
詳細を知りたい方、お問合せはお気軽に!
お問合わせNO:RHS-B01836-024642
| 価格 | 万円 | ||
|---|---|---|---|
| 年利率 | % |
||
| ボーナス払い | 返済年数 | ||
| 頭金 | 直接入力する | 万円 | |

毎月のご返済額 |
ボーナス(×年2回) |
物件価格3,480万円 |
詳細を知りたい方、お問合せはお気軽に!
お問合わせNO:RHS-B01836-024642
Shop
3LDK・テレワークルーム・主寝室7.5帖のゆとりある間取り!
LDK18帖・リビング階段で、子育て世代にもおすすめの物件です。