入間市仏子5期 全5棟 B号棟 埼玉県入間市大字仏子 |2,890万円の新築一戸建て
| 価格 | 2,890万円
月々の返済額※下記のシミュレーション結果です。
|
||||
|---|---|---|---|---|---|
| 所在地 | 埼玉県入間市大字仏子
この地域周辺の物件を見る |
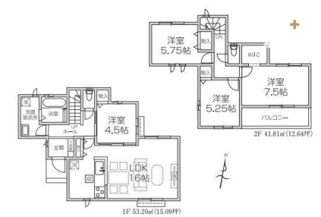
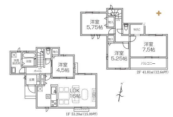
土地面積 | 148.55m² (44.93坪) | 建物面積 | 95.01u |
| 築年月 | - | 間取り | 4LDK (-) | ||
| 交通 |
西武池袋線 仏子 徒歩8分
西武池袋線 元加治 徒歩25分 |
||||
詳細を知りたい方、お問合せはお気軽に!
お問合わせNO:RHS-B01836-024256
| 特徴 |
|
|---|---|
| セールスコメント | ○おすすめPointo○ ●敷地44坪 ●複層ガラス ●ウォークインクローゼット 〜季節の物や趣味の物などすっきり片付きます。 ●24時間換気システム ●TVモニター付きインターホン ●カースペース2台 ○ライフインフォメーション○ ●仏子小学校 徒歩18分 ●西武中学校 徒歩10分 ●ビックエー 徒歩8分 ●ヤオコー 徒歩10分 ●セブンイレブン 徒歩4分 ●セイムス 徒歩11分 |
| 採光面 | - | 構造/階数 | 木造/地上2階建 |
|---|---|---|---|
| 建ぺい率 | 60(%) | 容積率 | 200(%) |
| 駐車場 | 有 | 現況/引渡し | -/相談 |
| 土地権利 | 所有権 | 私道負担面積 | - |
| 接道状況 | 接道: 南 道路幅: 4.2m | 用途地域 |
第一種住居地域
|
| セットバック | - | 法令上の制限 | - |
| 地目 | 宅地 | 地勢 | |
| 建築確認番号 | 第HPA-25-09305-1号 | 都市計画 | 市街化区域 |
| 取引態様 | 仲介 | ||
| 情報更新日 | 2025年11月15日 | 次回更新日 | 2025年11月29日 |
| 小学校区 | 入間市立仏子小学校 (埼玉県入間市) この学区の他の物件を見る |
中学校区 | 西武中学校 (埼玉県入間市) この学区の他の物件を見る |
|---|
詳細を知りたい方、お問合せはお気軽に!
お問合わせNO:RHS-B01836-024256
| 価格 | 万円 | ||
|---|---|---|---|
| 年利率 | % |
||
| ボーナス払い | 返済年数 | ||
| 頭金 | 直接入力する | 万円 | |

毎月のご返済額 |
ボーナス(×年2回) |
物件価格2,890万円 |
![]() |
![]() |
入間市大字仏子
2890万円〜3390万円 |
詳細を知りたい方、お問合せはお気軽に!
お問合わせNO:RHS-B01836-024256
Shop
全5棟の分譲地
敷地44坪以上、お庭でガーデニングも楽しめます。
買い物施設が充実の便利な住環境です。