未公開物件情報《新座市》【ひばりヶ丘営業所 塚本】|おうちの仲介+(株式会社アークレスト)
-
未公開物件情報《新座市》【ひばりヶ丘営業所 塚本】
皆さんこんにちは
ひばりヶ丘営業所の塚本です。
8月に入り暑さも本気を出してきてますね
30度を超える真夏日が続いておりますので、今年も暑さ対策を万全にして夏バテ防止に努めていきましょう
※ねばねばとした物を食べると夏バテ対策になるみたいです
さて、今回はなんと・・・『未公開物件』のご紹介をさせていただきます
新座市畑中2丁目の新築戸建
※現況は更地となります(12月完成予定)

《完成予定図》

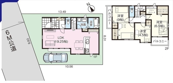
おすすめPOINT① 前面道路も幅員6m(公道)のため駐車もラクラク

間取りプラン

おすすめPOINT② 1階LDKが約19帖と広々とした家族団らんスペース
おすすめPOINT③ テレワーク時にも活用できるフリースペース空間
おすすめPOINT④ 各居室充実した収納力
などなどおすすめポイントが満載の『新築戸建て』物件となっております
詳細情報につきましては、ひばりヶ丘営業所スタッフまでお気軽にお問い合わせください
みなさまからのご連絡をスタッフ一同、心よりお待ちしております!
《CENTURY21アークレストひばりヶ丘営業所》
東京都西東京市谷戸町2-11-15 ファーストコンフォートビル1階
TEL:042-438-6221
MAIL:hibari@arcrest.co.jp
ページ作成日 2021-08-02
Shop
おうちの仲介+の店舗一覧
