所沢市上新井16期 B号棟 埼玉県所沢市上新井1丁目|4,390万円の新築一戸建て
| 価格 | 4,390万円
月々の返済額※下記のシミュレーション結果です。
|
||||
|---|---|---|---|---|---|
| 所在地 | 埼玉県所沢市上新井1丁目
この地域周辺の物件を見る |
土地面積 | 93.98m² (28.42坪) | 建物面積 | 85.59u |
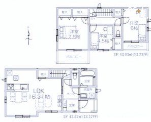
| 築年月 | 2026年5月築 | 間取り | 4LDK (LDK16.3/洋室7) | ||
| 交通 |
西武狭山線 西所沢 徒歩4分
西武新宿線 航空公園 徒歩24分 |
||||
詳細を知りたい方、お問合せはお気軽に!
お問合わせNO:RHS-B01836-026396
| 特徴 |
|
|---|---|
| セールスコメント | お客様の新しい《お住まい》のお手伝いをさせていただきます。 ファイナンシャルプランナーや、 宅地建物取引士などの資格を持ったスタッフによる、 無料相談を実施しております。 ・‥…おすすめポイント…‥・ ■リビングは16帖以上あり 〜家族の集まる空間は落ち着いたゆとりある大きさです ■家族と会話のはずむ対面キッチン 〜カウンターキッチン 〜三口コンロ ■陽当たり良好ワイドバルコニー 〜二部屋から出入りできるバルコニー ■浴室乾燥暖房機つき 〜雨の日のお洗濯も安心ですね ■TVインターホン ・‥…ライフインフォメーション…‥・ ■小学校まで徒歩12分 ■中学校まで徒歩30分 ■スーパーまで徒歩7分 ■幼稚園まで徒歩16分 〜生活しやすい住環境 |
| 採光面 | 南 | 構造/階数 | 木造/地上2階建 |
|---|---|---|---|
| 建ぺい率 | 60(%) | 容積率 | 100(%) |
| 駐車場 | 有 | 現況/引渡し | -/2026年5月下旬 |
| 土地権利 | 所有権 | 私道負担面積 | - |
| 接道状況 | 接道: 東 公道 道路幅: 4m | 用途地域 |
第一種低層住居専用地域
|
| セットバック | - | 法令上の制限 | 航空法/景観法/建築基準22条指定 |
| 地目 | 宅地 | 地勢 | 平坦 |
| 建築確認番号 | 第HPA-26-00523-1号他 | 都市計画 | 市街化区域 |
| 取引態様 | 仲介 | ||
| 情報更新日 | 2026年05月15日 | 次回更新日 | 2026年05月29日 |
| 小学校区 | 所沢市立上新井小学校 (埼玉県所沢市) この学区の他の物件を見る |
中学校区 | 小手指中学校 (埼玉県所沢市) この学区の他の物件を見る |
|---|
詳細を知りたい方、お問合せはお気軽に!
お問合わせNO:RHS-B01836-026396
| 価格 | 万円 | ||
|---|---|---|---|
| 年利率 | % |
||
| ボーナス払い | 返済年数 | ||
| 頭金 | 直接入力する | 万円 | |

毎月のご返済額 |
ボーナス(×年2回) |
物件価格4,390万円 |
詳細を知りたい方、お問合せはお気軽に!
お問合わせNO:RHS-B01836-026396
Shop
■西武池袋線・西武狭山線「西所沢駅」まで徒歩4分
■スーパー・コンビニが徒歩圏内で生活に便利
■閑静な住宅街に建つ新築戸建て住宅