富士見市 水子 全1棟 埼玉県富士見市大字水子 |4,690万円の新築一戸建て
| 価格 | 4,690万円
月々の返済額※下記のシミュレーション結果です。
|
||||
|---|---|---|---|---|---|
| 所在地 | 埼玉県富士見市大字水子
この地域周辺の物件を見る |
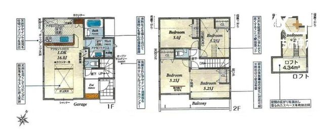
土地面積 | 108.99m² (32.96坪) | 建物面積 | 93.15u |
| 築年月 | 2026年4月築 | 間取り | 4LDK (LDK16/洋室5/洋室5.2) | ||
| 交通 |
東武東上線 みずほ台 徒歩17分
東武東上線 鶴瀬 徒歩26分 |
||||
詳細を知りたい方、お問合せはお気軽に!
お問合わせNO:RHS-B01836-025598
| 特徴 |
|
|---|---|
| セールスコメント | 【東武東上線みずほ台駅まで徒歩16分!】 ●教育施設が徒歩圏内! 〜子育て世帯におすすめ! ●落ち着いた閑静な住宅街 ●駅徒歩圏内!通勤通学に便利! ・‥…━…‥・‥…━…‥・‥…━…‥・‥…━…‥・ 駐車スペース並列3台分あり!ゆったりとした3(4)LDK ・‥…━…‥・‥…━…‥・‥…━…‥・‥…━…‥・ ■リビングは16帖。折上天井で開放感を??ラス! ■家族とコミュニケーションが取れる対面キッチン ■全居室収納あり 〜ロフトあり!天井高があり開放的な洋室 ■家族の成長に合わせて間取り変更可能。 ■カースペース並列で3台あり! ・‥…━…‥・‥…━…‥・‥…━…‥・‥…━…‥・ 水谷小学校 徒歩11分 本郷中学校 徒歩5分 〜子育て世帯におすすめ。その他お買い物施設、公園などが徒歩圏で生活環境良好! ・‥…━…‥・‥…━…‥・‥…━…‥・‥…━…‥・ |
| 採光面 | 南 | 構造/階数 | 木造/地上2階建 |
|---|---|---|---|
| 建ぺい率 | 50(%) | 容積率 | 80(%) |
| 駐車場 | 有 | 現況/引渡し | -/相談 |
| 土地権利 | 所有権 | 私道負担面積 | - |
| 接道状況 | 接道: 南 公道 道路幅: 4.2m | 用途地域 |
第一種低層住居専用地域
|
| セットバック | - | 法令上の制限 | - |
| 地目 | 山林 | 地勢 | |
| 建築確認番号 | 第25UDI1W建11334号 | 都市計画 | 市街化区域 |
| 取引態様 | 仲介 | ||
| 情報更新日 | 2026年04月22日 | 次回更新日 | 2026年05月06日 |
| 小学校区 | 富士見市立水谷小学校 (埼玉県富士見市) この学区の他の物件を見る |
中学校区 | () |
|---|
詳細を知りたい方、お問合せはお気軽に!
お問合わせNO:RHS-B01836-025598
| 価格 | 万円 | ||
|---|---|---|---|
| 年利率 | % |
||
| ボーナス払い | 返済年数 | ||
| 頭金 | 直接入力する | 万円 | |

毎月のご返済額 |
ボーナス(×年2回) |
物件価格4,690万円 |
詳細を知りたい方、お問合せはお気軽に!
お問合わせNO:RHS-B01836-025598
Shop
【東武東上線みずほ台駅まで徒歩16分!】
●教育施設が徒歩圏内!
〜子育て世帯におすすめ!
●落ち着いた閑静な住宅街
●駅徒歩圏内!通勤通学に便利!