ディアステージ小平 東京都小平市天神町1丁目|2,999万円の中古マンション|分譲住宅や新築物件
| 価格 | 2,999万円
値下がり
月々の返済額※下記のシミュレーション結果です。
|
||||
|---|---|---|---|---|---|
| 所在地 | 東京都小平市天神町1丁目
この地域周辺の物件を見る |
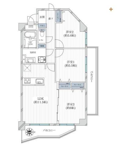
専有面積 | 67.64u | 築年月 | 1995年8月築 |
| 交通 |
西武新宿線 小平 徒歩15分
西武拝島線 小平 徒歩15分 |
管理費等 | 14,200円 | 修繕積立金 | 25,430円 | 所在階/階数 | 3階/地上6階建 | バルコニー面積 | 12.68m² |
| 間取り | 3LDK (-) | ||||
詳細を知りたい方、お問合せはお気軽に!
お問合わせNO:RHS-B01836-024946
| 特徴 |
|
|---|---|
| セールスコメント | 【オンラインでのご相談、見学が可能 】 来店しなくてもテレビ電話でオンライン商談、物件見学ができるオンライン対応を実施! ◇資料請求などお気軽にお問い合わせください♪ ◇株式会社アークレスト *・。*・。*・。*・。*・。*・。*・。*・。*・。*・。 ■新規リフォーム済の綺麗なお部屋で新生活をスタート ■家族が集う約11.5帖LDK ■全室窓ありで通風良好 ■二面バルコニーで開放感あり ■安心のオートロックマンション ■留守時にも荷物が受け取れる宅配ボックス 〜周辺環境〜 ■小平第二小学校 徒歩9分 ■いなげやina21 徒歩6分 ■ローソン 徒歩9分 ほか |
| 採光面 | 東 | 取引態様 | 仲介 |
|---|---|---|---|
| 現況 | 空家 | 引渡し | 相談 |
| 総戸数 | 32戸 | 構造 | RC造 |
| テラス面積 | - | 専用庭面積 | - |
| 駐車場 | 有:11,000円/月 | 駐輪場 | - |
| 建物権利 | - | 土地権利 | 所有権 |
| 用途地域 | - - - | 管理態様 | 管理形態:委託(巡回) 管理組合:- 管理会社:株式会社東急コミュニティー |
| 情報更新日 | 2026年04月20日 | 次回更新日 | 2026年05月04日 |
| 小学校区 | 小平市立小平第二小学校 (東京都小平市) この学区の他の物件を見る |
中学校区 | 小平第三中学校 (東京都小平市) この学区の他の物件を見る |
|---|
詳細を知りたい方、お問合せはお気軽に!
お問合わせNO:RHS-B01836-024946
| 価格 | 万円 | ||
|---|---|---|---|
| 年利率 | % |
||
| ボーナス払い | 返済年数 | ||
| 頭金 | 直接入力する | 万円 | |

毎月のご返済額 |
ボーナス(×年2回) |
物件価格2,999万円 |
詳細を知りたい方、お問合せはお気軽に!
お問合わせNO:RHS-B01836-024946
Shop
■「小平」駅徒歩15分の緑豊かで閑静な住宅街
■小学校徒歩9分の安心の環境
■買い物施設・病院など日々の暮らしに必要な施設が徒歩10分以内の充実した環境