ザ・ガーデンハウス武蔵野 東京都西東京市柳沢2丁目|4,990万円の中古マンション|分譲住宅や新築物件
| 価格 | 4,990万円
月々の返済額※下記のシミュレーション結果です。
|
||||
|---|---|---|---|---|---|
| 所在地 | 東京都西東京市柳沢2丁目
この地域周辺の物件を見る |
専有面積 | 73.91u | 築年月 | 1999年7月築 |
| 交通 |
西武新宿線 西武柳沢 徒歩8分
JR中央本線 吉祥寺 バス27分 武蔵野北高校前 停歩6分 |
管理費等 | 12,600円 | 修繕積立金 | 13,200円 | 所在階/階数 | 3階/地上11階 地下1階建 | バルコニー面積 | 9.47m² |
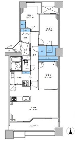
| 間取り | 3LDK (-) | ||||
詳細を知りたい方、お問合せはお気軽に!
お問合わせNO:RHS-B01836-025713
| 特徴 |
|
|---|---|
| セールスコメント | 【オンラインでのご相談、見学が可能 】 来店しなくてもテレビ電話でオンライン商談、物件見学ができるオンライン対応を実施! ◇資料請求などお気軽にお問い合わせください♪ ◇株式会社アークレスト ★・。.。・☆・。.★・。.。・☆・。.★・。.。 ■新規リフォーム後のキレイな室内で新生活をスタート 〜2026.4完了予定〜 ■全240戸のビッグコミュニティ ■南向きの明るいお住まい ■リビングを見渡せるカウンターキッチン ■家事動線がスムーズな水回り集中タイプ ■納戸・ウォークインクローゼット付きで収納豊富 ■エレベーター停止階 〜ライフインフォメーション〜 ■オーケー 徒歩8分 ■セブンイレブン 徒歩5分 ■保谷第二小学校 徒歩6分 ■柳沢中学校 徒歩4分 ほか |
| 採光面 | 南 | 取引態様 | 仲介 |
|---|---|---|---|
| 現況 | 空家 | 引渡し | 相談 |
| 総戸数 | 240戸 | 構造 | RC造 |
| テラス面積 | - | 専用庭面積 | - |
| 駐車場 | 有:5,500円/月 | 駐輪場 | - |
| 建物権利 | - | 土地権利 | 所有権 |
| 用途地域 | 第一種住居地域 - - | 管理態様 | 管理形態:委託(通勤) 管理組合:- 管理会社:住友不動産建物サービス株式会社 |
| 情報更新日 | 2026年05月03日 | 次回更新日 | 2026年05月17日 |
| 小学校区 | () |
中学校区 | () |
|---|
詳細を知りたい方、お問合せはお気軽に!
お問合わせNO:RHS-B01836-025713
| 価格 | 万円 | ||
|---|---|---|---|
| 年利率 | % |
||
| ボーナス払い | 返済年数 | ||
| 頭金 | 直接入力する | 万円 | |

毎月のご返済額 |
ボーナス(×年2回) |
物件価格4,990万円 |
詳細を知りたい方、お問合せはお気軽に!
お問合わせNO:RHS-B01836-025713
Shop
■「西武柳沢」駅徒歩8分の利用!
〜バス利用にてJR線「三鷹」「吉祥寺」駅へのアクセス可能な良好な立地
■小中学校徒歩10分以内
■ペットOK!