東村山市久米川町第4 全6棟 4号棟 東京都東村山市久米川町2丁目|4,290万円の新築一戸建て
| 価格 | 4,290万円
月々の返済額※下記のシミュレーション結果です。
|
||||
|---|---|---|---|---|---|
| 所在地 | 東京都東村山市久米川町2丁目
この地域周辺の物件を見る |
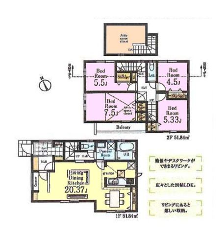
土地面積 | 114.64m² (34.67坪) | 建物面積 | 103.68u |
| 築年月 | 2026年5月築 | 間取り | 4LDK (-) | ||
| 交通 |
西武国分寺線 東村山 バス12分 江戸道 停歩3分
西武新宿線 東村山 徒歩19分 |
||||
詳細を知りたい方、お問合せはお気軽に!
お問合わせNO:RHS-B01836-025848
| 特徴 |
|
|---|---|
| セールスコメント | 【敷地のポイント】 ●土地面積 約34坪以上 ●カースペース 【建物のポイント】 ●4LDK ●ロフト ●20帖LDK ●シューズインクローク ● 主寝室にゆとりを持たせ、落ち着いて過ごしやすい空間設計 ● 収納量を重視し、衣類や季節物の整理がしやすい ● 生活スペースと居室を分けやすく、メリハリのある暮らしが可能 ● 長く住むことを想定した、安定感のある間取り |
| 採光面 | 南西 | 構造/階数 | 木造/地上2階建 |
|---|---|---|---|
| 建ぺい率 | 50(%) | 容積率 | 100(%) |
| 駐車場 | 有 | 現況/引渡し | -/相談 |
| 土地権利 | 所有権 | 私道負担面積 | あり 149m² |
| 接道状況 | 接道: 南西 私道 道路幅: 4.5m | 用途地域 |
第一種低層住居専用地域
|
| セットバック | - | 法令上の制限 | - |
| 地目 | 宅地 | 地勢 | |
| 建築確認番号 | 第R07SHC1087688号他 | 都市計画 | 市街化区域 |
| 取引態様 | 仲介 | ||
| 情報更新日 | 2026年03月09日 | 次回更新日 | 2026年03月23日 |
| 小学校区 | 東村山市立久米川東小学校 (東京都東村山市) この学区の他の物件を見る |
中学校区 | 東村山第二中学校 (東京都東村山市) この学区の他の物件を見る |
|---|
詳細を知りたい方、お問合せはお気軽に!
お問合わせNO:RHS-B01836-025848
| 価格 | 万円 | ||
|---|---|---|---|
| 年利率 | % |
||
| ボーナス払い | 返済年数 | ||
| 頭金 | 直接入力する | 万円 | |

毎月のご返済額 |
ボーナス(×年2回) |
物件価格4,290万円 |
![]() |
![]() |
東村山市久米川町2丁目
4190万円〜4890万円 |
詳細を知りたい方、お問合せはお気軽に!
お問合わせNO:RHS-B01836-025848
Shop
西武新宿線・国分寺線利用可!穏やかな街並みに調和する、安心感のある新築分譲