所沢市上新井 埼玉県所沢市上新井3丁目|3,490万円の中古一戸建て
| 価格 | 3,490万円
月々の返済額※下記のシミュレーション結果です。
|
||||
|---|---|---|---|---|---|
| 所在地 | 埼玉県所沢市上新井3丁目
この地域周辺の物件を見る |
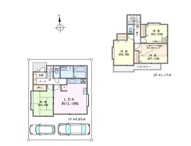
土地面積 | 100.16m² (30.29坪) | 建物面積 | 91.02u |
| 築年月 | 2002年5月築 | 間取り | 3LDK (-) | ||
| 交通 |
西武池袋線 小手指 徒歩14分
西武狭山線 西所沢 徒歩19分 |
||||
詳細を知りたい方、お問合せはお気軽に!
お問合わせNO:RHS-B01836-025619
| 特徴 |
|
|---|---|
| セールスコメント | お客様の新しい《お住まい》のお手伝いをさせていただきます。 ファイナンシャルプランナーや、 宅地建物取引士などの資格を持ったスタッフによる、 無料相談を実施しております。 ・‥…おすすめポイント…‥・ ■新規内外装リフォーム(令和7年12月上旬完了) ◇システムキッチン交換(浄水器付き水栓・3口ガラストップコンロ) ◇カップボード新設 ◇洗面化粧台交換(三面鏡タイプ) ◇ユニットバス交換(浴室換気乾燥暖房機付き) ◇トイレ交換(ウォシュレット) ◇天井・クロス張替え ◇外壁・屋根塗装 ◇ベランダ防水 ◇フローリング張替え(一部) ◇給湯器交換◇ダウンライト照明、換気口交換 ◇網戸張替え◇畳表替え◇ふすま張替え ◇CF張替え◇カーテンレール設置 ◇外構整備◇リペア補修◇ハウスクリーニング等 〜リフォーム済み!気持ち良く新生活始められますね!〜 ・‥…ライフインフォメーション…‥・ ■保育園まで徒歩3分 ■小学校まで徒歩12分 ■中学校まで徒歩16分 ■スーパーまで徒歩3分 ■コンビニまで徒歩2分 |
| 採光面 | - | 構造/階数 | 木造/地上2階建 |
|---|---|---|---|
| 建ぺい率 | 60(%) | 容積率 | 100(%) |
| 駐車場 | - | 現況/引渡し | 空家/相談 |
| 土地権利 | 所有権 | 私道負担面積 | あり 129m² |
| 接道状況 | 接道: 西 11.6m 私道 道路幅: 4m | 用途地域 |
第一種低層住居専用地域
|
| セットバック | - | 法令上の制限 | - |
| 地目 | 宅地 | 地勢 | |
| 建築確認番号 | 都市計画 | 市街化区域 | |
| 取引態様 | 仲介 | ||
| 情報更新日 | 2026年02月10日 | 次回更新日 | 2026年02月24日 |
| 小学校区 | 所沢市立上新井小学校 (埼玉県所沢市) この学区の他の物件を見る |
中学校区 | 小手指中学校 (埼玉県所沢市) この学区の他の物件を見る |
|---|
詳細を知りたい方、お問合せはお気軽に!
お問合わせNO:RHS-B01836-025619
| 価格 | 万円 | ||
|---|---|---|---|
| 年利率 | % |
||
| ボーナス払い | 返済年数 | ||
| 頭金 | 直接入力する | 万円 | |

毎月のご返済額 |
ボーナス(×年2回) |
物件価格3,490万円 |
詳細を知りたい方、お問合せはお気軽に!
お問合わせNO:RHS-B01836-025619
Shop
◇新規内外装リフォーム!商業施設も近く利便性の良い立地
◇収納豊富な使い勝手が良い間取り!
◇カースペース2台可(車種による)