新座市新堀2丁目 全1棟 埼玉県新座市新堀2丁目|4,680万円の新築一戸建て
| 価格 | 4,680万円
月々の返済額※下記のシミュレーション結果です。
|
||||
|---|---|---|---|---|---|
| 所在地 | 埼玉県新座市新堀2丁目
この地域周辺の物件を見る |
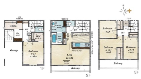
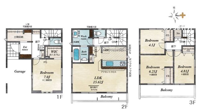
土地面積 | 67.28m² (20.35坪) | 建物面積 | 115.61u |
| 築年月 | 2025年12月築 | 間取り | 4LDK (-) | ||
| 交通 |
西武池袋線 清瀬 徒歩8分
JR武蔵野線 東所沢 徒歩48分 |
||||
詳細を知りたい方、お問合せはお気軽に!
お問合わせNO:RHS-B01836-024614
| 特徴 |
|
|---|---|
| セールスコメント | ★・。.。・☆・。.★・。.。・☆・。.★・。.。 ■全居室2面採光の明るいお住まい ■家族が集うLDKは15帖超 〜外からの視線が気にならない2階リビング ■リビングを見渡せるカウンターキッチン 〜便利なビルトイン食洗機付き ■家事動線がスムーズな水回り集中タイプ ■主寝室にはウォークインクローゼット ■2居室から出入り可能な南向きバルコニー ■リビングに室内物干付き ■玄関に土間収納 〜ベビーカーやアウトドア用品など収納可能 〜周辺環境〜 ■ドラッグセイムス 徒歩5分 ■ファミリーマート 徒歩6分 ■スーパーオザム 徒歩6分 ■オーケー 徒歩7分 ほか |
| 採光面 | 南 | 構造/階数 | 木造/地上3階建 |
|---|---|---|---|
| 建ぺい率 | 60(%) | 容積率 | 160(%) |
| 駐車場 | 有 | 現況/引渡し | -/相談 |
| 土地権利 | 所有権 | 私道負担面積 | あり 49.83m² |
| 接道状況 | 接道: 東 私道 道路幅: 4m | 用途地域 |
第一種中高層住居専用地域
|
| セットバック | なし | 法令上の制限 | 高度地区 |
| 地目 | 宅地 | 地勢 | |
| 建築確認番号 | 第R07SHC116290号 | 都市計画 | 市街化区域 |
| 取引態様 | 仲介 | ||
| 情報更新日 | 2025年11月15日 | 次回更新日 | 2025年11月29日 |
| 小学校区 | 清瀬市立清瀬第十小学校 (東京都清瀬市) この学区の他の物件を見る |
中学校区 | 清瀬第五中学校 (東京都清瀬市) この学区の他の物件を見る |
|---|
詳細を知りたい方、お問合せはお気軽に!
お問合わせNO:RHS-B01836-024614
| 価格 | 万円 | ||
|---|---|---|---|
| 年利率 | % |
||
| ボーナス払い | 返済年数 | ||
| 頭金 | 直接入力する | 万円 | |

毎月のご返済額 |
ボーナス(×年2回) |
物件価格4,680万円 |
詳細を知りたい方、お問合せはお気軽に!
お問合わせNO:RHS-B01836-024614
Shop
■西武池袋線『清瀬』駅8分!通勤通学に便利
■スーパーが近く日々のお買い物に便利
■新堀小学校まで徒歩9分
〜小さなお子様も安心